首页
关于我们
平开系列
推拉系列
联系我们
新闻中心
详细内容
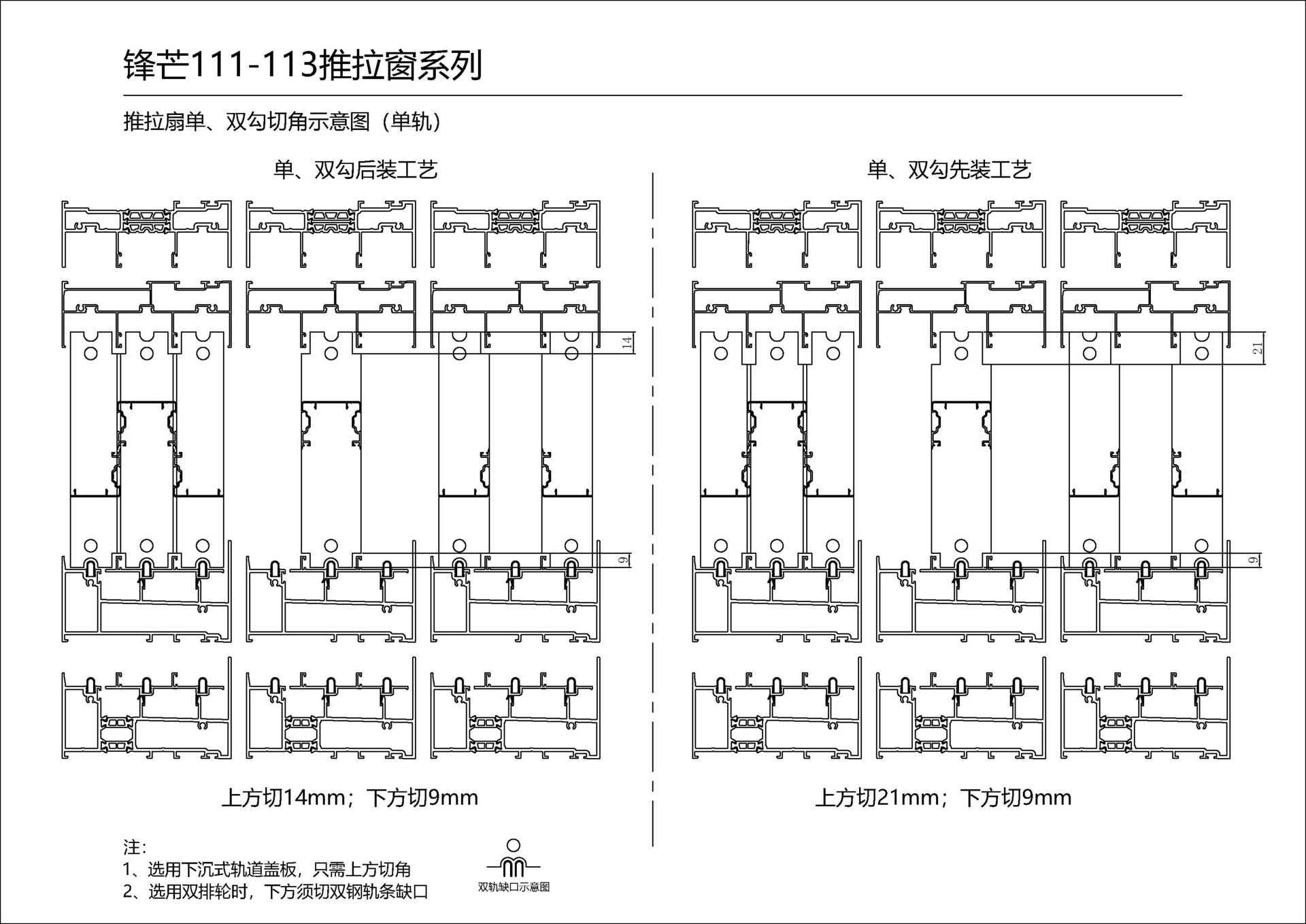
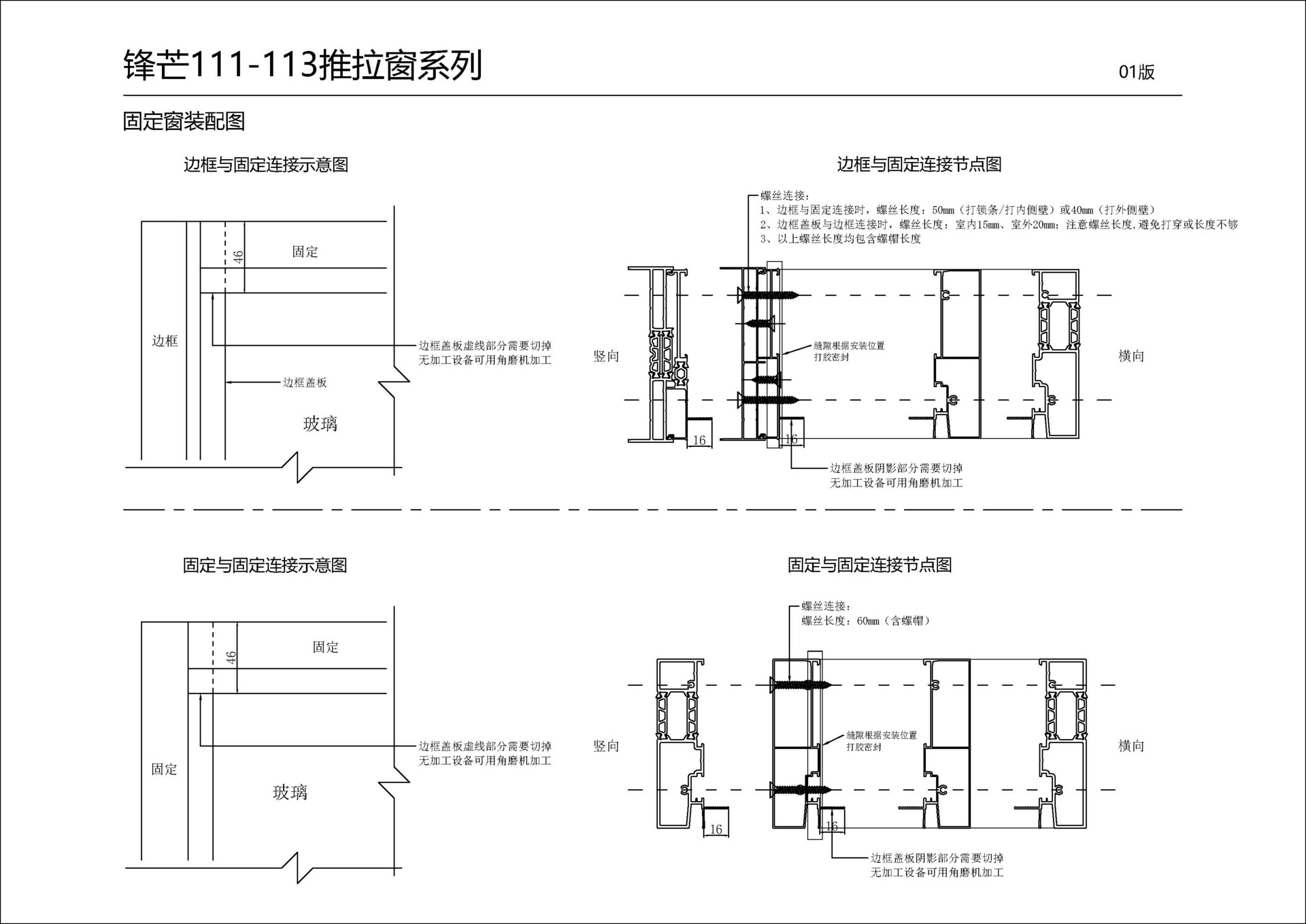
111单色推拉窗
上一篇
101断桥推拉窗
下一篇
112断桥推拉窗
标题
更多
关于我们
企业文化
联系我们
标题
更多
推拉系列
平开系列
关于我们
业务范围
访问手机站
科瑞致铝业
地址:佛山市南海区大沥镇太平西工业区2号自编1号厂房
技术支持:
企集科技
|
管理登录